Description
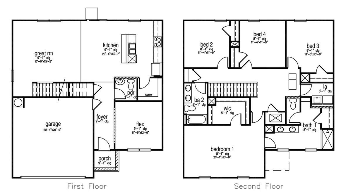
Welcome to Laurel Grove in Guyton! This amenity-rich neighborhood features a planned swimming pool, large open-air pavilion, and sidewalk-lined streets that make it easy to walk to nearby top-rated schools and enjoy the neighborhood's peaceful setting. Meet the Galen a bold and versatile two-story floor plan offering Hardie plank siding, 2,340 square feet of well-designed living space with 9ft ceilings throughout the main level, including 4 bedrooms, 2.5 bathrooms, a 2-car garage, and a flexible room that adds endless possibilities. Built with durable Hardie plank siding for lasting quality and great curb appeal, the Galen at Laurel Grove delivers comfort and flexibility in all the right places. The main floor welcomes you with a dedicated flex room off the foyer perfect for a home office, playroom, or formal dining area. From there, the home opens to an expansive kitchen, dining area, and great room. The oversized kitchen island, ample cabinet space, walk-in pantry, and stainless-steel appliances make it a chef's dream and an entertainer's paradise. A powder room and coat closet add convenience, and the 2-car garage offers plenty of storage. Upstairs, the primary suite is a true retreat, complete with a massive walk-in closet, dual vanity, and large walk-in shower. Three additional bedrooms each generously sized share a full bath with double vanity, and a dedicated laundry room adds functionality right where you need it. From busy mornings to laid-back weekends, the Galen is designed to keep life running smoothly wrapped in stylish curb appeal and modern comfort, all within beautiful Laurel Grove. Smart home features include, Skybell Doorbell, Z-Wave Deadbolt, Smart Garage Door Opener, Qolsys Touchscreen Panel, Z-wave light switch, and Honeywell Z Wave Thermostat! Pool, Playground, Dog Park. Pictures, photographs, colors, features, and sizes are for illustration purposes only and will vary from the homes as built. Home is under construction. More information on programs and options is available.
-
4BEDS
-
0.15ACRES
-
2BATHS
-
11/2 BATHS
-
2,340SQFT
-
$174$/SQFT
School Information
Description
Welcome to Laurel Grove in Guyton! This amenity-rich neighborhood features a planned swimming pool, large open-air pavilion, and sidewalk-lined streets that make it easy to walk to nearby top-rated schools and enjoy the neighborhood's peaceful setting. Meet the Galen a bold and versatile two-story floor plan offering Hardie plank siding, 2,340 square feet of well-designed living space with 9ft ceilings throughout the main level, including 4 bedrooms, 2.5 bathrooms, a 2-car garage, and a flexible room that adds endless possibilities. Built with durable Hardie plank siding for lasting quality and great curb appeal, the Galen at Laurel Grove delivers comfort and flexibility in all the right places. The main floor welcomes you with a dedicated flex room off the foyer perfect for a home office, playroom, or formal dining area. From there, the home opens to an expansive kitchen, dining area, and great room. The oversized kitchen island, ample cabinet space, walk-in pantry, and stainless-steel appliances make it a chef's dream and an entertainer's paradise. A powder room and coat closet add convenience, and the 2-car garage offers plenty of storage. Upstairs, the primary suite is a true retreat, complete with a massive walk-in closet, dual vanity, and large walk-in shower. Three additional bedrooms each generously sized share a full bath with double vanity, and a dedicated laundry room adds functionality right where you need it. From busy mornings to laid-back weekends, the Galen is designed to keep life running smoothly wrapped in stylish curb appeal and modern comfort, all within beautiful Laurel Grove. Smart home features include, Skybell Doorbell, Z-Wave Deadbolt, Smart Garage Door Opener, Qolsys Touchscreen Panel, Z-wave light switch, and Honeywell Z Wave Thermostat! Pool, Playground, Dog Park. Pictures, photographs, colors, features, and sizes are for illustration purposes only and will vary from the homes as built. Home is under construction. More information on programs and options is available.
The data relating to real estate on this web site comes in part from the Internet Data Exchange program of Hive MLS LLC, and is updated as of 2026-03-06T10:08:06.257. All information is deemed reliable but not guaranteed and should be independently verified. All properties are subject to prior sale, change, or withdrawal. Neither listing broker(s) nor Team Kristin Brown | Keller Williams Coastal Area Partners shall be responsible for any typographical errors, misinformation, or misprints, and shall be held totally harmless from any damages arising from reliance upon these data. © 2026 Hive MLS LLC